Description de l'offre
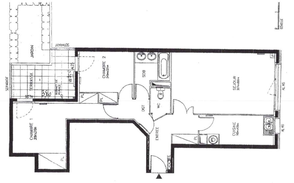
INVESTISSEMENT LOCATIF – ASNIERES / GABRIEL PERI – 3 PIECES 69 M² + TERRASSE 16 M² – PARKING + CAVE: Dans un quartier agréable et recherché proche du métro Gabriel Péri (Ligne 13), venez découvrir ce joli 3 pièces de 69 m² avec terrasse de 16 m², situé dans une résidence de standing calme et sécurisée. L’appartement se compose d’une entrée, d’un séjour lumineux, d’une cuisine indépendante ( Poss US ), de deux chambres, d’une salle d’eau et de WC séparés. Double vitrage -Chauffage individuel (charges/mois : 190€) VENDU LOUE (BAIL EN COURS DEPUIS LE 15/03/2023) LOYER : 1 301,40 € / MOIS HORS CHARGES LOCATAIRE SERIEUX, A JOUR DE SES LOYERS - GESTION LOCATIVE ASSUREE PAR NOS SOINS. Idéal pour un investissement locatif sécurisé dans un secteur dynamique, à proximité des commerces, écoles, jardins et transports. Pour plus d’informations ou une visite, contactez le Groupe BSI OGIPA – Achat | Vente | Location | Gestion.
