Description de l'offre
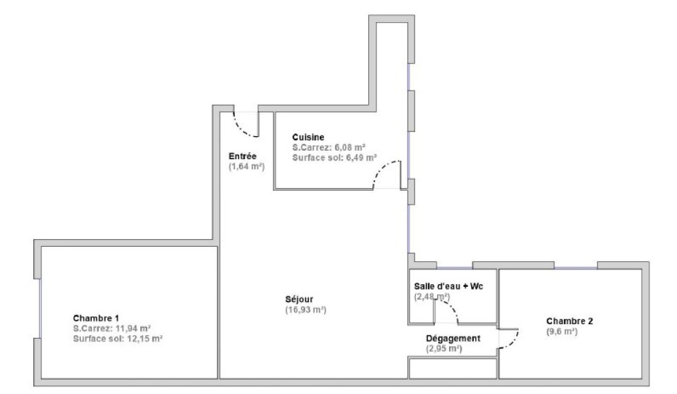
VINCENNES 93400 / AVENUE DE PARIS - 3PIECES 52M²- EN ETAGE - Dans un immeuble calme et sécurisé, appartement de 52M², composé d'une entrée, séjour, cuisine ( possible US), deux chambres, salle d’eau avec WC. Vendu avec une cave. DOUBLE VITRAGE - CHAUFFAGE INDIVIDUEL (charges / mois 70€). Proche commerces, jardin et transports: Ligne 1 BERAULT. POUR ORGANISER UNE VISITE, CONTACTEZ LE GROUPE BSI OGIPA – ACHAT | VENTE | LOCATION | GESTION.
